£475,000 - New Instruction


  • 3 BEDROOMS
  • EN-SUITE TO MASTER (ON THE GROUND FLOOR)
  • LOUNGE OVER LOOKING GARDEN
  • 20'6 MAX X 18'1 KITCHEN
  • DETACHED GARAGE
  • OFF STREET PARKING
  • FAMILY BATHROOM
  • DOUBLE GLAZED
  • SNUG
  • DINING AREA

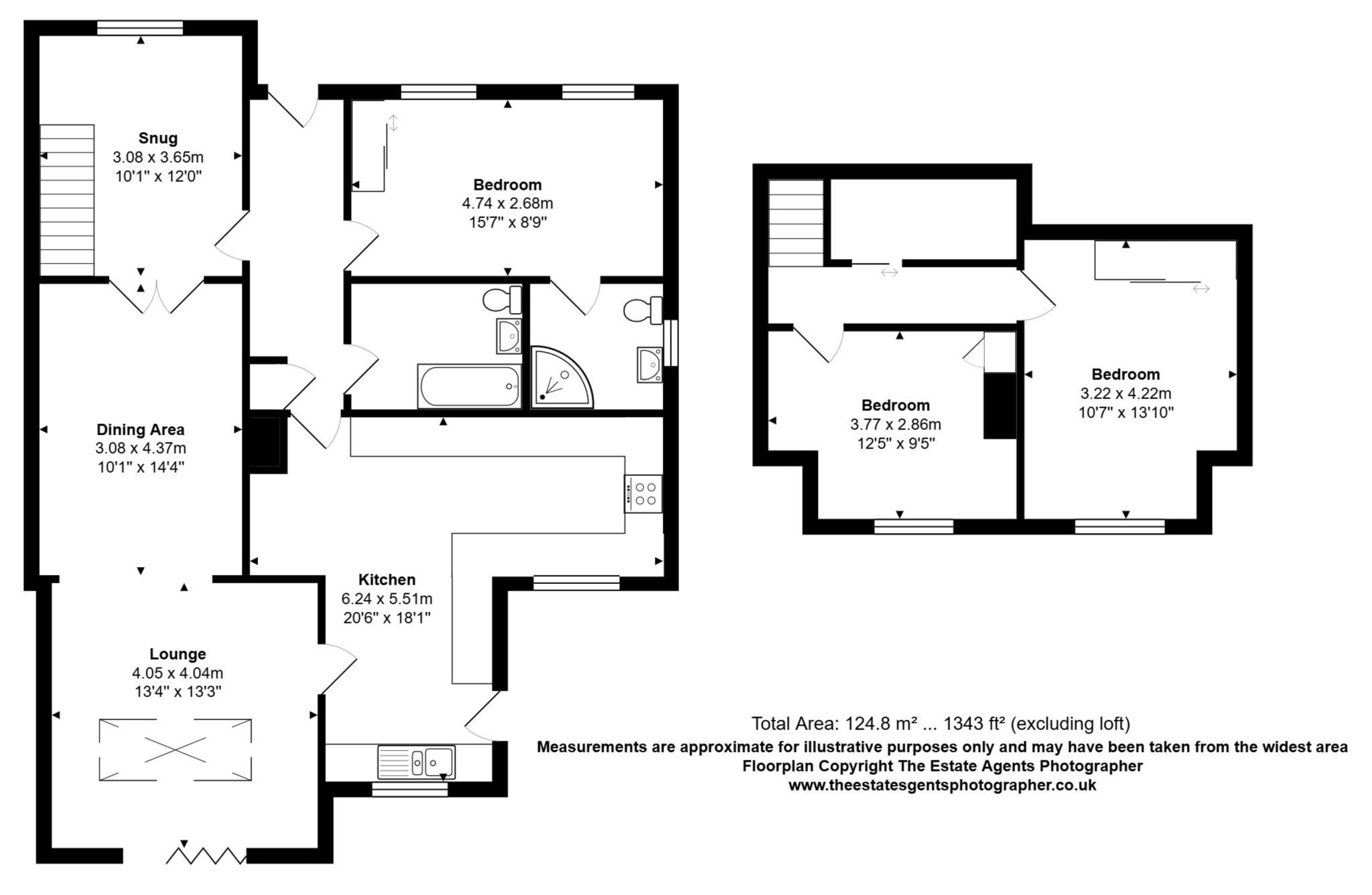
Situated within close proximity of Thundersley Village & Common, this deceptive chalet offers 3 bedrooms with en-suite to master, lounge with Bi-folding doors and roof lantern, dining area, snug, 20'6 kitchen, family bathroom and a detached garage

Entrance Hall
Entrance door with pattern double glazed panels, tiled floor to porch area, step up to hallway with laminate flooring, radiator, coving to smooth finish ceiling, airing cupboard housing water tank, doors to:

Bedroom One - 15'7" (4.75m) x 8'9" (2.67m)
Two double glazed windows to front, radiator, coving to smooth finish ceiling with inset spot lights, mirror fronted wardrobes, door to:

En-suite
Pattern double glazed window to side, suite comprising corner shower cubicle, wash and basin & low level wc in vanity surround, tiled walls & floor, towel rail, smooth finish ceiling with inset spot lights,

Bathroom
Suite comprising panelled bath with mixer tap and shower attachment, low level wc, pedestal wash hand basin, tiled walls & floor, towel rail, smooth finish ceiling, extractor fan.

Snug - 12'0" (3.66m) x 10'1" (3.07m)
Double glazed windows to front, stairs to first floor, radiator, coving to smooth finish ceiling, double doors to:

Dining Area - 14'4" (4.37m) x 10'1" (3.07m)
Feature fire surround with inset wood burner, radiator, coving to smooth finish ceiling, open plan to:

Lounge - 13'4" (4.06m) x 13'3" (4.04m)
Bi-folding doors with inset blinds overlooking the garden, roof lantern, radiator, coving to smooth finish ceiling with inset spot lights, door to kitchen.

Kitchen - 20'6" (6.25m) Max x 18'1" (5.51m)
Two double glazed windows to rear, double glazed door to side, 1.5 bowl inset sink with mixer tap, ample work top surfaces with cupboards and drawers under, eye level cupboards, integrated wine fridge, fridge/freezer & dish washer, extractor hood, radiator, laminate flooring, coving to smooth finish ceiling with inset spot lights,

Landing
Smooth finish ceiling, radiator, access to loft storage area, doors to:

Bedroom Two - 13'10" (4.22m) Max x 10'7" (3.23m)
Double glazed window to rear, radiator, textured and beamed ceiling, mirror front wardrobes with boiler and access to eaves storage area.

Bedroom Three - 12'5" (3.78m) Max x 9'5" (2.87m)
Double glazed window to rear, radiator, textured and beamed ceiling, built in cupboard.

Loft Storage
Access via sliding door.

Front
Block paving provides off street parking.

Garden
Paved patio area with inset pond, steps down from the lounge, further patio, lawn with shrub beds, shed

Garage
Access from Grangeway via double gates with parking space, up and over door, power & light connected.



Council Tax
Castle Point Borough Council, Band C

Notice
Please note we have not tested any apparatus, fixtures, fittings, or services. Interested parties must undertake their own investigation into the working order of these items. All measurements are approximate and photographs provided for guidance only.

Floor Plan
EER Chart

The Energy-Efficiency Rating is a measure of a home's overall efficiency. The higher the rating, the more energy-efficient the home is, and the lower the fuel bills are likely to be.

Utility Supply Type
Electric Mains Supply
Gas Mains Supply
Water Mains Supply
Sewerage Mains Supply
Broadband FTTC
Telephone Landline

Other Items Description
Heating Gas Central Heating
Garden/Outside Space Yes
Parking Yes
Garage Yes

Broadband Coverage Highest Available Download Speed Highest Available Upload Speed
Standard 7 Mbps 0.8 Mbps
Superfast 75 Mbps 20 Mbps
Ultrafast 1800 Mbps 1000 Mbps

Mobile Coverage Indoor Voice Indoor Data Outdoor Voice Outdoor Data
EE Likely Likely Enhanced Enhanced
Three Likely Likely Enhanced Enhanced
O2 Enhanced Likely Enhanced Enhanced
Vodafone Enhanced Enhanced Enhanced Enhanced

Broadband and Mobile coverage information supplied by Ofcom.


marker icon