£210,000 - Sold STC


  • 2 BEDROOM FIRST FLOOR FLAT
  • GOOD SIZE LOUNGE
  • APPROX 157 YEARS REMAINING ON LEASE
  • CLOSE TO TOWN CENTRE & RAIL STATION
  • NO ONWARD CHAIN

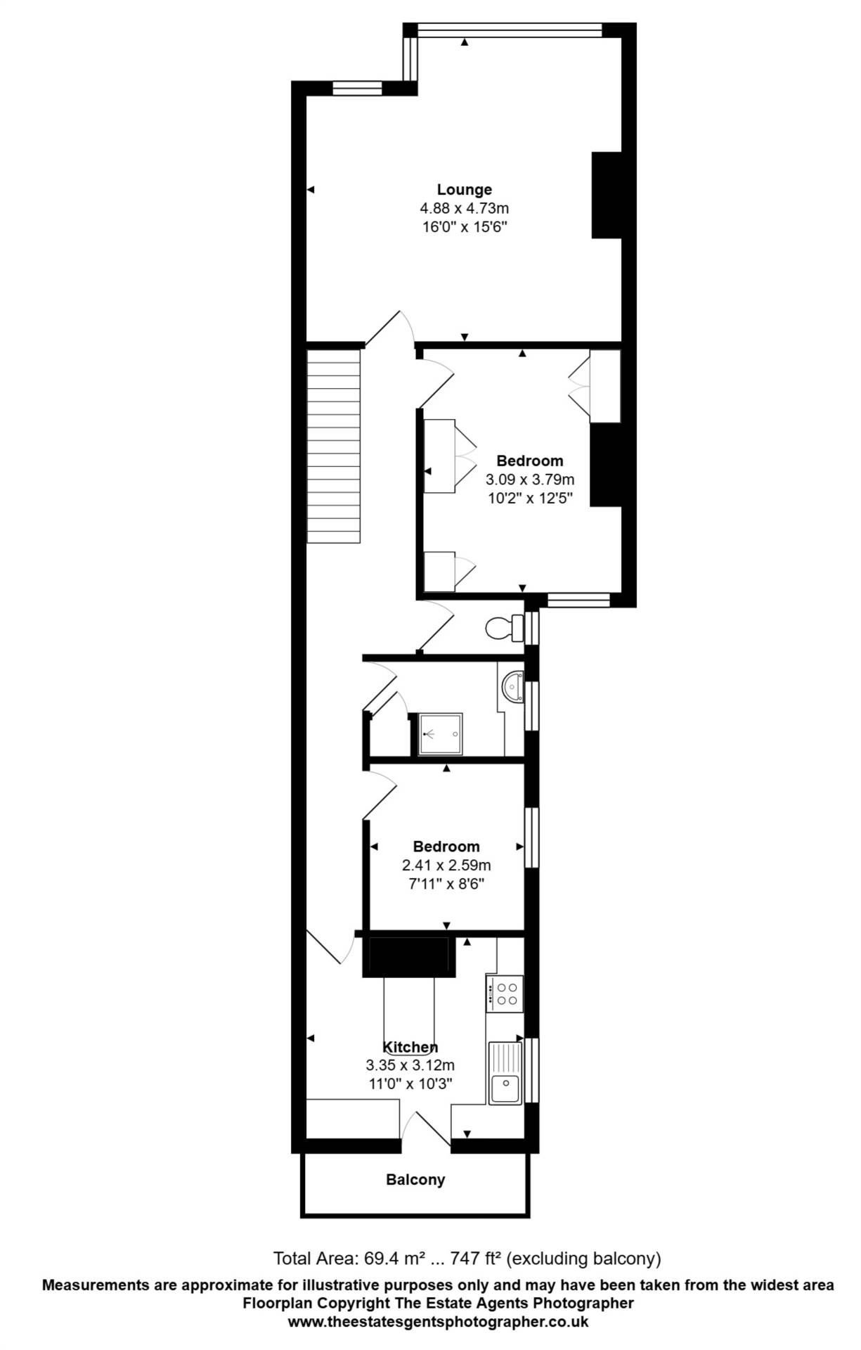
Situated within close proximity of Southend High Street, rail stations & Sea front, this first floor flat requires some updating but offers 2 bedrooms, 16' lounge, 11' kitchen, shower room and separate wc. Lease with approx 157 years remaining. No onward chain.

Entrance
Via communal entrance door to hall, with own front door

Split level Landing
Radiator, doors to:

Lounge - 16'0" (4.88m) x 15'6" (4.72m)
Two double glazed windows to front, radiators cornice ceiling

Bedroom One - 12'5" (3.78m) Max x 8'11" (2.72m) Plus Recess
Double glazed window to rear, fitted wardrobes, radiator, built-in cupboard

Bedroom Two - 8'6" (2.59m) x 7'11" (2.41m)
Double glazed window to side, radiator.

Separate WC
Pattern glazed window to side, low level wc.

Shower Room
Pattern double glazed window to side, suite comprising tiled shower cubicle with sliding door, wash hand basin in work top surround with cupboard under, towel rail, airing cupboard.

Kitchen - 11'0" (3.35m) x 8'6" (2.59m) Plus Recess
Double glazed window to side, double glazed door to balcony, inset sink with mixer tap, work top surfaces with cupboards and drawers below, eye level cupboards, 4 ring ceramic hob with under oven and extractor hood over, tiled splash back, wall mounted boiler, radiator.

Balcony
Timber construction balcony accessed from the kitchen


Cambridge Road is in a residents permit parking area

LEASE INFORMATION
Length of lease: 199 years from 1984: 157 years remaining
Ground Rent: £60pa, rising to £80 in 2044, then rising to £120 in 2074
No service charges, maintenance split between the 2 flats when required
Building Insurance: self insured

Agents Note
In accordance with the 1979 estate agency act we must point out that the vendor is related to/associate of Robert Michael Estate Agents



Council Tax
Southend City Council, Band B

Ground Rent
£60.00 Yearly

Lease Length
157 Years

Notice
Please note we have not tested any apparatus, fixtures, fittings, or services. Interested parties must undertake their own investigation into the working order of these items. All measurements are approximate and photographs provided for guidance only.

Floor Plan
EER Chart

The Energy-Efficiency Rating is a measure of a home's overall efficiency. The higher the rating, the more energy-efficient the home is, and the lower the fuel bills are likely to be.

Utility Supply Type
Electric Mains Supply
Gas Mains Supply
Water Mains Supply
Sewerage Mains Supply
Broadband FTTC
Telephone Landline

Other Items Description
Heating Gas Central Heating
Garden/Outside Space No
Parking No
Garage No

Broadband Coverage Highest Available Download Speed Highest Available Upload Speed
Standard 17 Mbps 1 Mbps
Superfast 80 Mbps 20 Mbps
Ultrafast 1000 Mbps 1000 Mbps

Mobile Coverage Indoor Voice Indoor Data Outdoor Voice Outdoor Data
EE Likely Likely Enhanced Enhanced
Three Likely Likely Enhanced Enhanced
O2 Enhanced Enhanced Enhanced Enhanced
Vodafone Likely Likely Enhanced Enhanced

Broadband and Mobile coverage information supplied by Ofcom.


marker icon